Housing Choices Australia Dandenong
Housing Choices Australia Dandenong
A place to live happily and with a pride of place.
Traditional Land Owners: Bunurong People
Builder: Manresa Constructions
Photography: Derek Swalwell
Awards:
2020 Victorian Architecture Awards: Commendation - Multiple Housing
Media:
Architecture Australia - Sept/Oct 2020
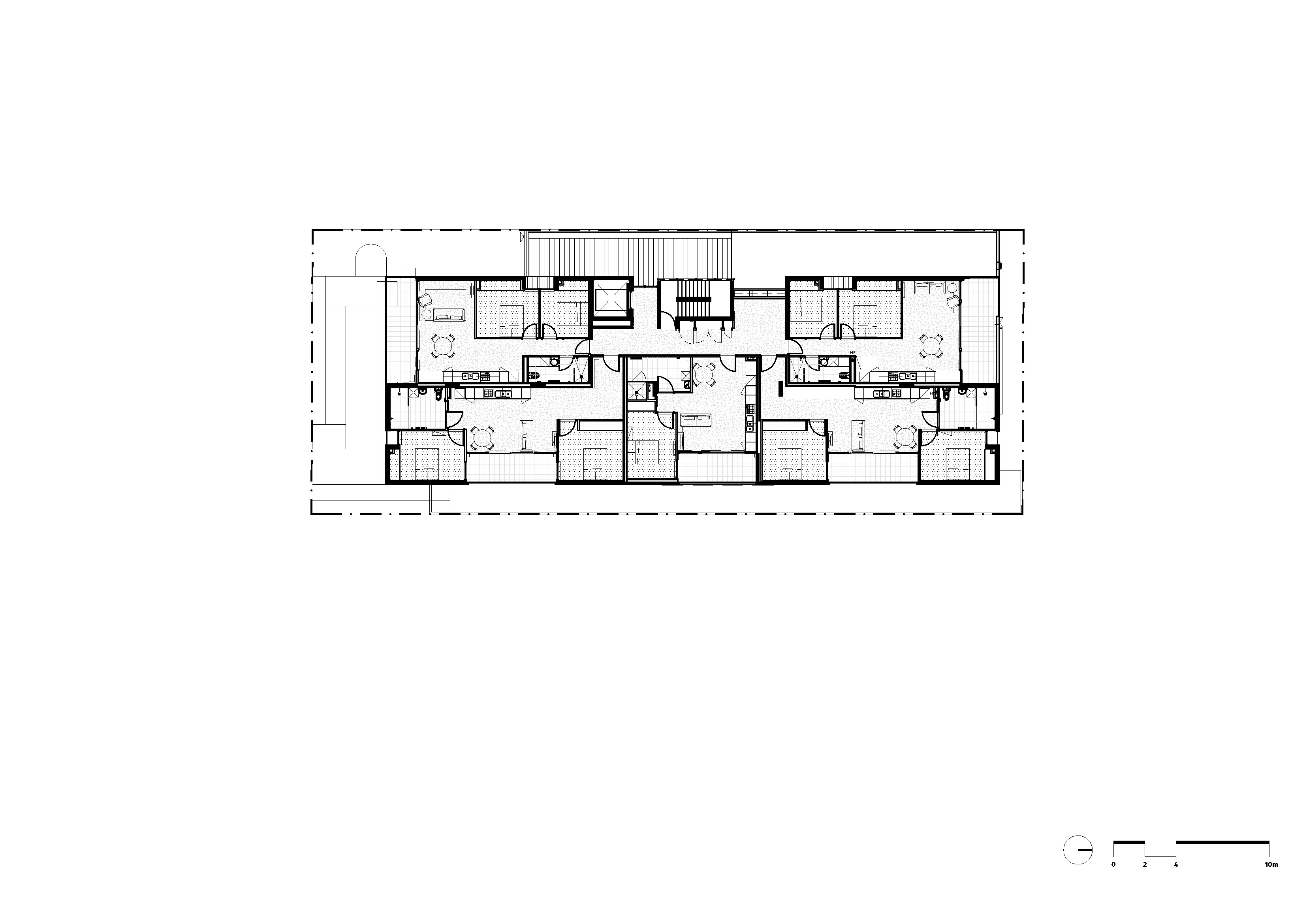
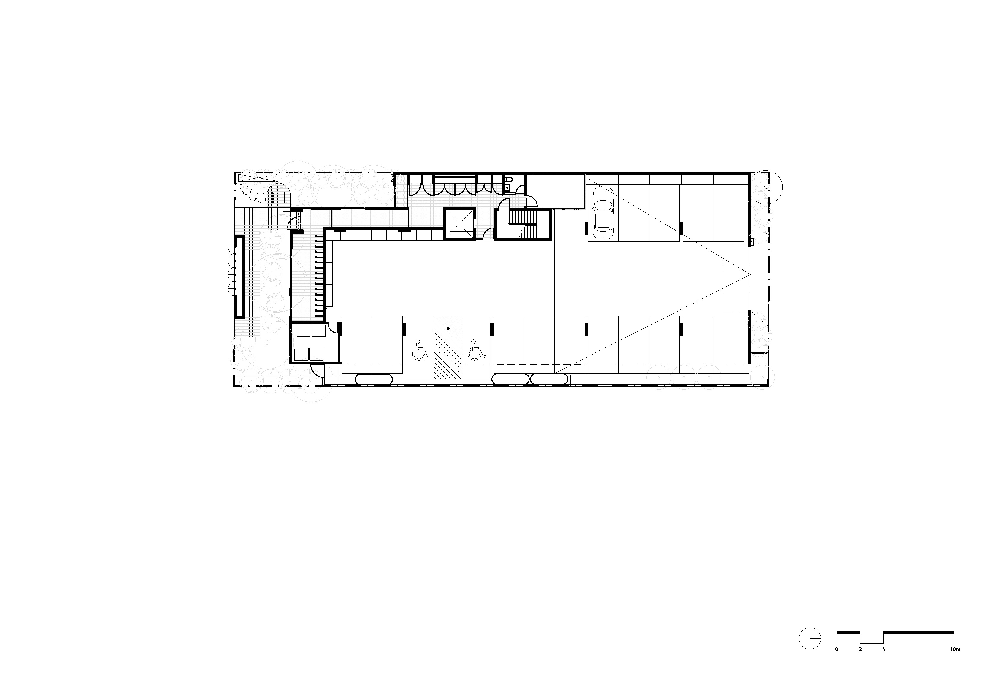
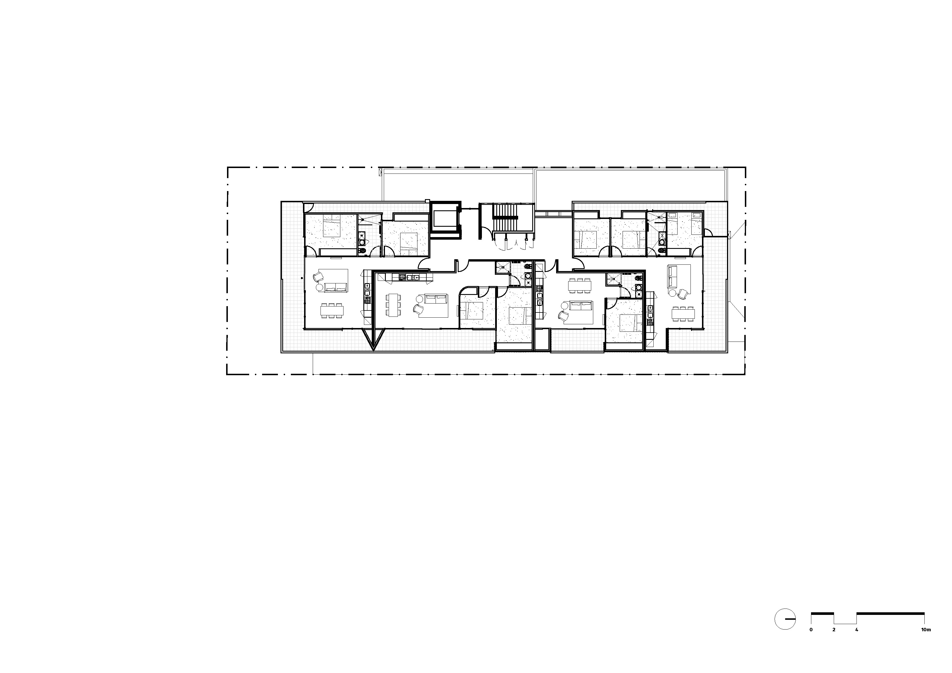
View plans here
Housing Choices Australia is a national not-for-profit housing association that creates safe, quality, affordable housing for people who are struggling to find a home in Australia’s challenging private rental market.
Kennedy Nolan was engaged by Housing Choices Australia to undertake the design and delivery of an apartment building for a site in Hemmings Street Dandenong. The brief was to maximise yield, provide high quality amenity, conform to the Liveable Design Guidelines and HCA’s own design, construction and maintenance standards as well as conventional authority requirements.
HCA retain ownership of their assets, so durability and maintenance are an important priority. These projects are an exercise in the delivery of rational, robust and economical apartments that also deliver the warmth and delight of good housing and avoid the dispiriting and stigmatising visual cues of institutional architecture.
Within these constraints and obvious socially responsible design outcomes, it was also important to Kennedy Nolan and HCA to achieve exemplary environmentally sustainable homes. Initiatives include:
- Dual aspect to most apartments and all town houses for optimum passive cooling and solar access.
- Water collection & storage for on-site use.
- Electric Stovetops
- Lighting, fixtures and materials specification to maximize thermal, water and energy efficiency
- Water efficient tapware, appliances and sanitary fixtures
- Building envelope and material selection for effective thermal mass
- Secure & accessible bike parking at building entry.
HCA Dandenong looks and feels different – it was inexpensive to build and manages high standards of accessibility, amenity and sustainability but most importantly it is a place to live happily and with a pride of place.




















