Westgarth House
Westgarth House
Traditional Land Owners: Wurundjeri People
Builder: Greg Scott Constructions
Photography: Derek Swalwell
Awards:
2014 Victorian Architecture Awards: Residential Alterations & Additions
2014 Houses Awards: winner - Heritage
2014 Houses Awards: Commendation - House Alteration and Addition under 200 square meters
Media:
Houses - Issue 101, Dec 2014
The Design Files - 'Westgarth House', 2015
Architecture Australia - 'Playful finesse: Westgarth House', April 2015
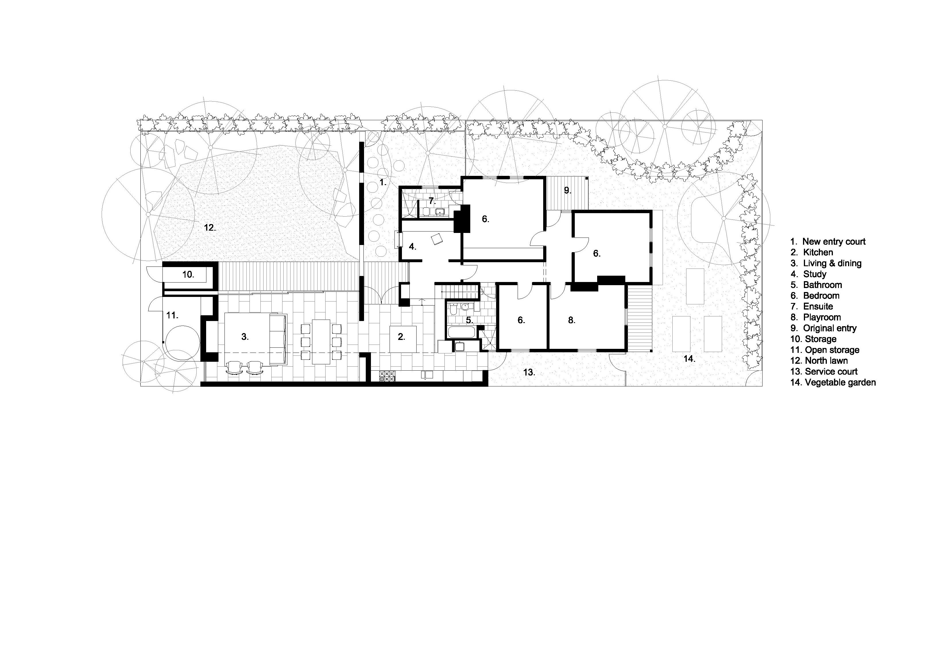
View plans here

















