Melbourne Place - Mid Air

Melbourne Place - Mid Air

A rooftop bar and restaurant in the heart of the CBD.

Traditional Land Owners: Wurundjeri People
Builder: ADCO Constructions
Landscape: Amanda Oliver Gardens
Photography: Kristoffer Paulsen


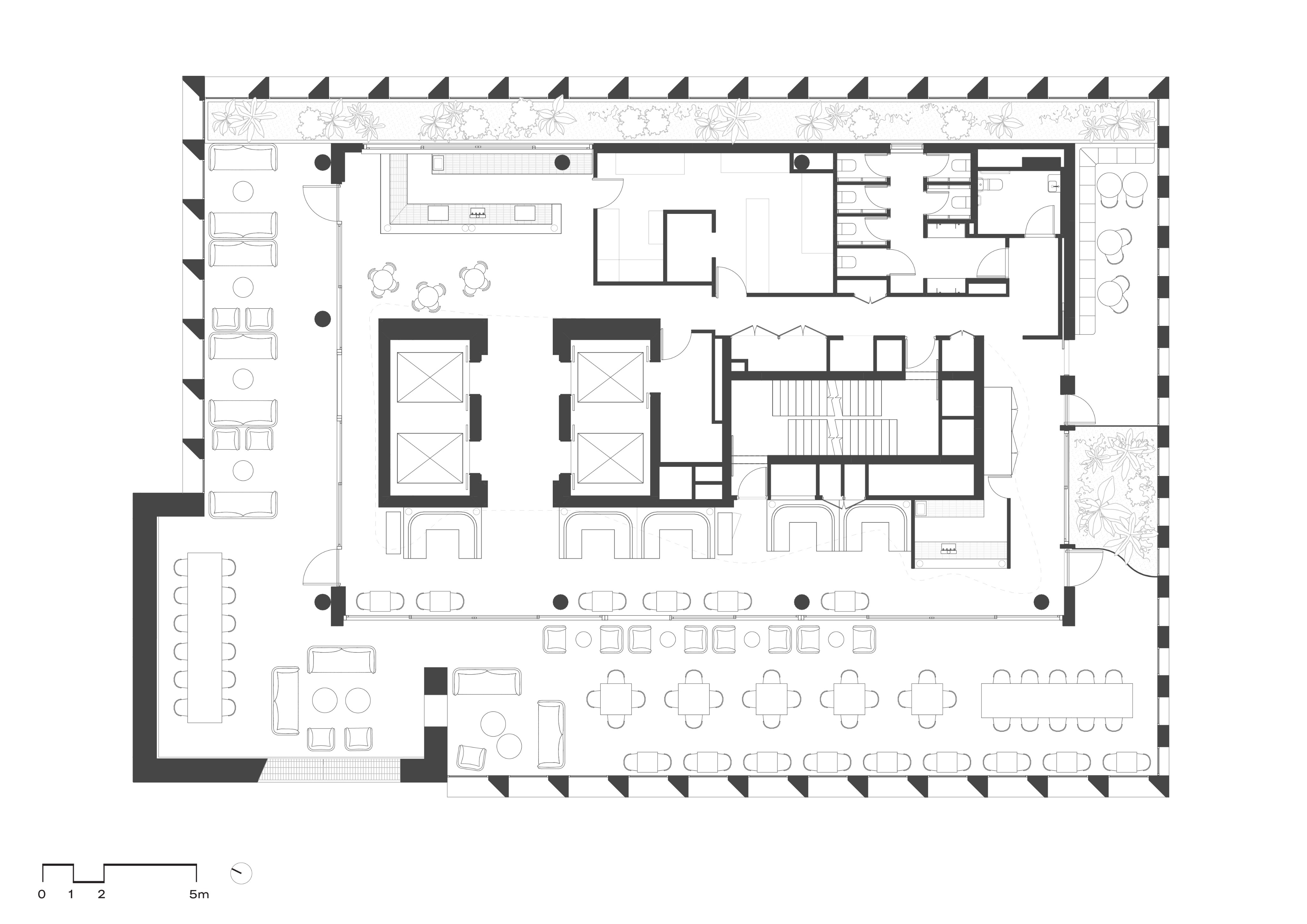
View plans here

Situated on the twelfth floor of Melbourne Place, Mid Air is where Melburnians, their friends and their visitors come to be hosted in a setting reflecting the unique qualities of Melbourne Place Hotel.

 

Melbourne Place is first and foremost a host for Melbourne and Mid Air brings together all that’s best about hospitality in this famously hospitable city, amplified by the unique qualities of an independent hotel designed in and for Melbourne.

 

Mid Air resides quite literally in mid-air.  Level 12 is a sweet spot – high enough for panoramic views of the surrounding city, but not so high that it’s removed from the sights and the sounds of the streets, or buffeted by wind in a setting which is capable of both indoor and outdoor modes.

 

There are a diversity of places to be at Mid Air – outside terraces incorporate a double-sided fireplace, Amanda Oliver designed gardens and full-height glazing to the perimeter.  Inside, there are intimate tables and booths for groups and celebrations.  The venue will operate all day and into the night - transforming from an elegant, sun-filled environment for breakfast or lunch into a golden-hued spot for sunset drinks and finally a sophisticated and theatrical evening dining room.

 

Design themes evident in the hotel – rich materiality, colour, natural textures, warmth and a theatrical ambience – emerge again in Mid Air.  As with the hotel, local materials and makers dominate including furniture and lighting developed specifically for the venue by Melbourne designers and makers.

 

The venue is anchored around the ‘eyes’ of the hotel – massive twin oculi which frame the northern view and glow softly at night – making both the venue and the hotel a beacon visible across the city.