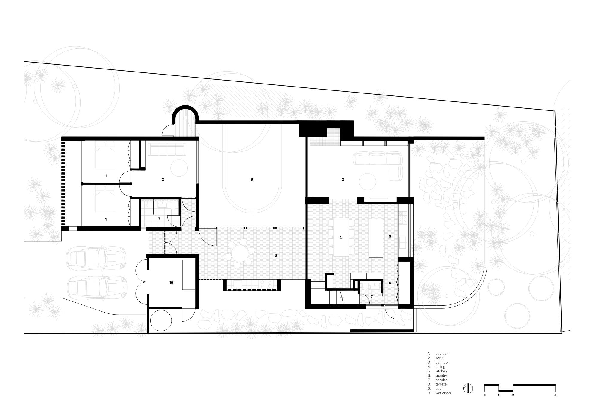
Ocean Grove House
Ocean Grove House
A new house down the Bellarine Peninsula.
Traditional Land Owners: Wadawurrung People
Builder: Bolder Constructions
Photography: Derek Swalwell
Media
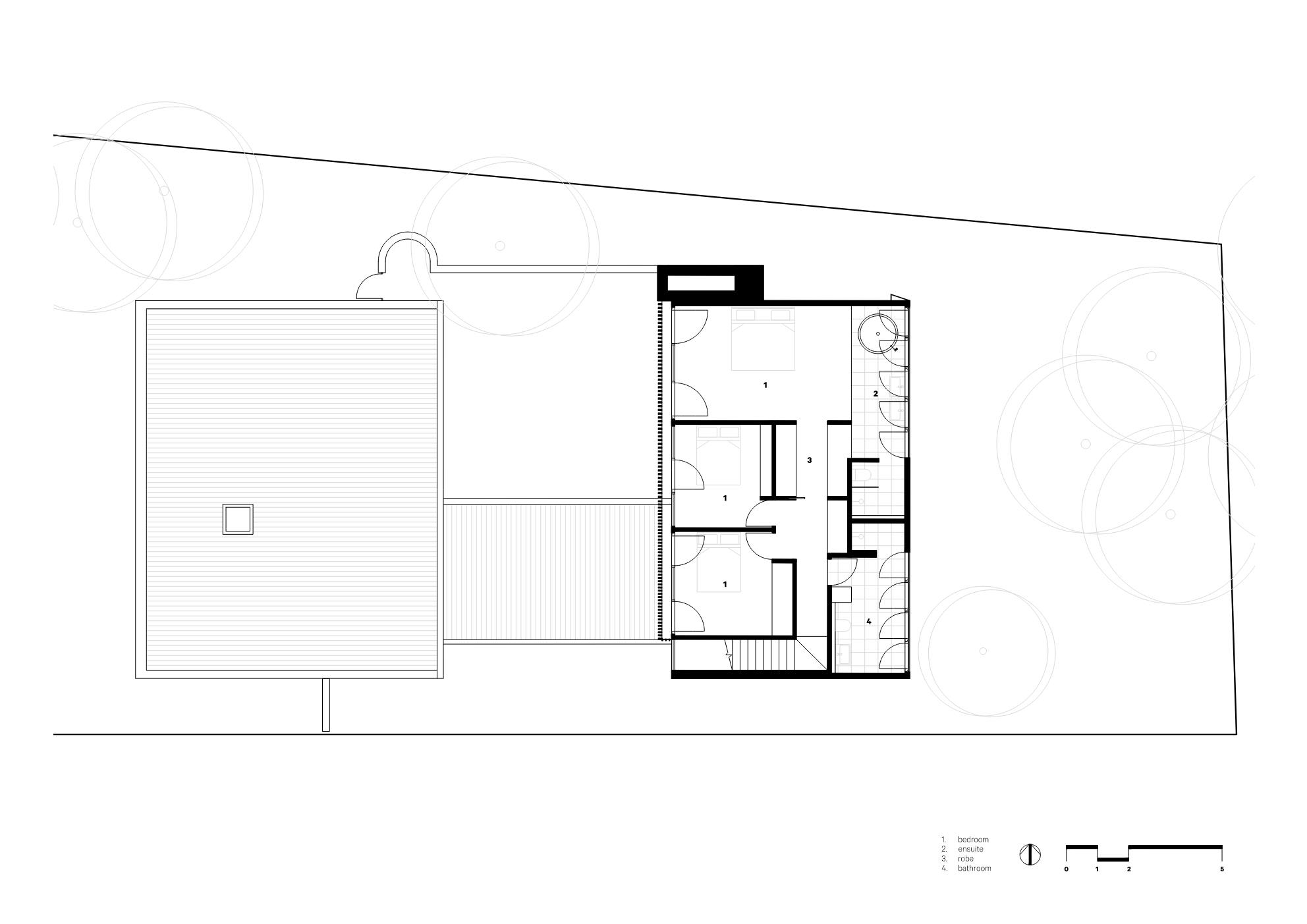
Ocean Grove House
A new house down the Bellarine Peninsula.
Traditional Land Owners: Wadawurrung People
Builder: Bolder Constructions
Photography: Derek Swalwell
Media