Milk Bar House
Milk Bar House
Additions and alterations to a former corner milk bar and attached Owner's residence.
Traditional Land Owners: Wurundjeri People
Builder: CBD Contracting
Landscape: Amanda Oliver Gardens
Photography: Derek Swalwell
Awards:
2021 Victorian Architecture Awards: Award- Houses (Alterations & Additions)
2021 Houses Awards: Award - House Alteration and Addition over 200 square meters
View plans here
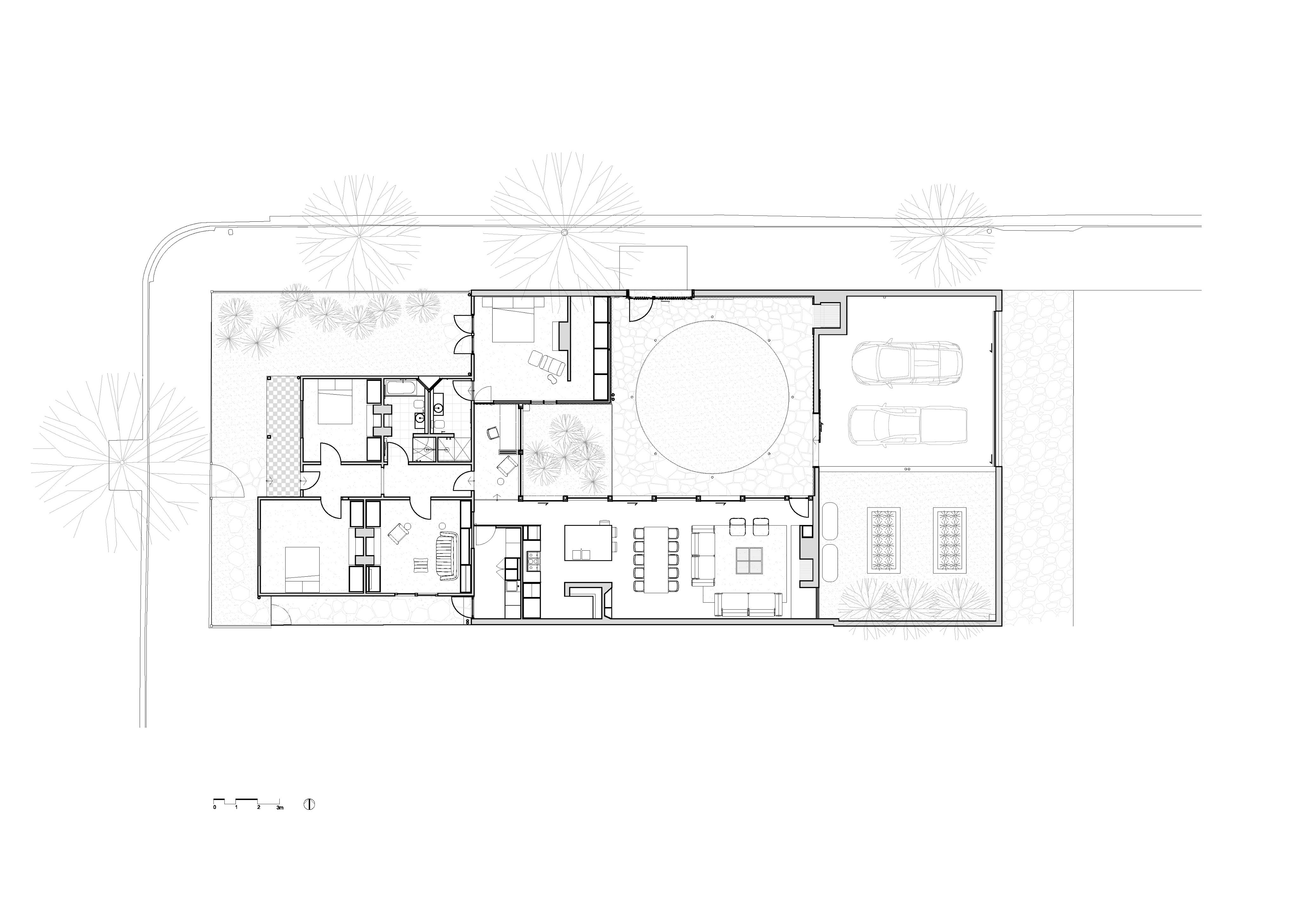
This project consists of work to a much-loved building typology which is seldom seen these days – a corner milk bar with the Owner’s residence attached - in this case the house is a handsome but unremarkable late Victorian block fronted weatherboard. Our brief was for a conventional family home, but our Clients had some specific requests – a very large garage and a large productive garden. Large garages and vegetable gardens can be tricky to get looking good when space is limited.
To manage this, we based our design conceptually on the compartmentalisation of space that you see in the Medina of Arab cities. We were greatly assisted in this by the long high wall to the side boundary which made up the former milk bar. By retaining this element (impossible to build now with our Planning Schemes) we were able to organize our spaces into walled zones – the entry courtyard, the garage and the working garden. This arrangement of space is ideally suited to inner suburban sites as it provides outside space which is private, secure and able to be completely integrated with the interior.
We were very keen to capture the exciting experience of threshold that walled cities provide – the emphasis on the street door, in this case under the awning of the old milk bar, directly into an ‘oasis’. This green refuge is many things - a welcoming respite from the street, an ante-room to the interiors and a gathering space for the house.














