Matthews House

Matthews House

A mid-century home, rich in materiality and a strong sense of restraint.

Mid-century architecture is so hot right now, perhaps reflecting a recognition of the optimism and innovation of this design expression.  Inevitably another consequence of this is a reductive and shallow aestheticization, which rather misses the point of this often frugal and rational movement and a tendency we were anxious to avoid.  The house presented to us as a curious hybrid of mid-century style with somewhat patrician planning incorporating served and servant spaces.  Conceptually then, our aspiration for this project was grounded in an elevation of an eroded and imperfect twentieth and century aesthetic combined with a strengthening and in some cases correction of an established planning principle.

We find it useful to look at projects like these as a series of problems to be solved or a suite of optimisations to be achieved.  In this case, the opulent late modernist interiors were not shown to their best advantage – an inevitable result of incremental change eroding their original impact and shifting standards of amenity and function.  We also found that the exterior expression was mis-matched to the elegant interiors and though the garden orientation appeared good on plan, it remained strangely remote.

Our work here consists of a suite of interventions – editing the entry narrative by extending the rich materiality of the interior, reclaiming external space to the private realm and re-presenting the house to the street with a simpler, stronger gesture.  The interior approach involved triaging the internal fabric – celebrating the highest quality parts through restoration, pulling away the superfluous and correcting and strengthening colour palettes.  Some parts, such as the kitchen and the bathrooms are completely new –and involved riffing off the lovely existing tertiary colour palettes to inject freshness and relieve austerity.

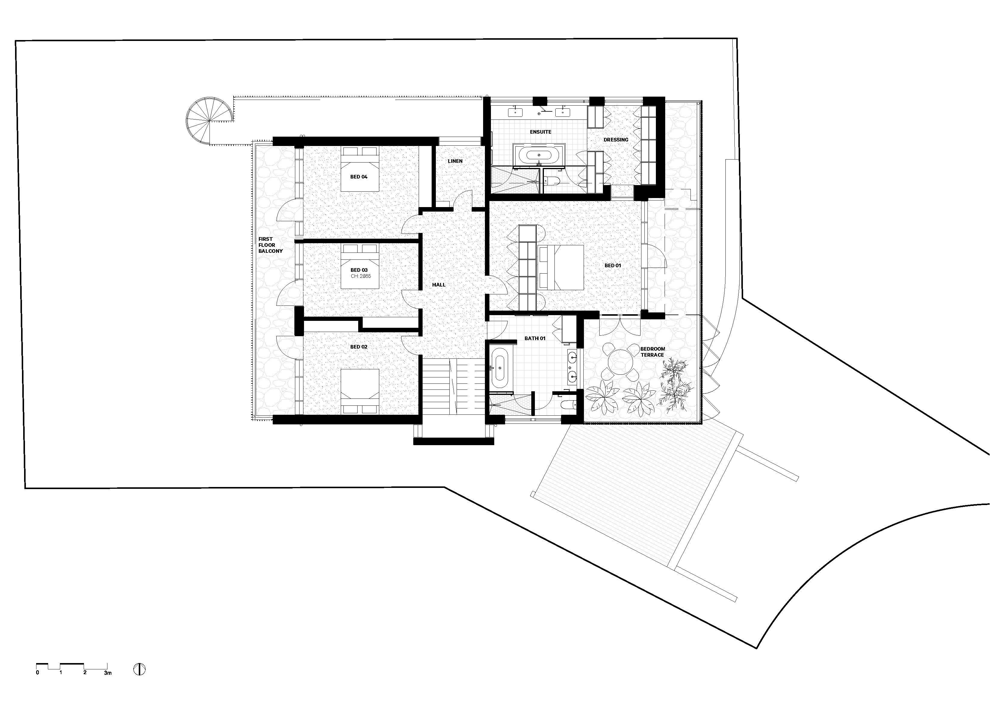
Liveability was achieved through a rigorous approach to enclosure and privacy, heightening the entry experience, reinforcing the layered functions of the house to elevate the experience of living spaces as separate from operational spaces and connecting the house vertically and horizontally to the outside spaces.

A sunken room with wood panelled cupboards, pink carpet and small dining table
the facade of a modernist house with wooden slats and a driveway.
A stairway with a railing and a painting.
A sunken living room with a wooden panelled wall, looking onto the white marble floored dining room.
A dining room with pink carpet, wooden panelling walls and a small table and chairs.
A bathroom with a green marble counter top and dark timber shelving.
A bathroom with a green marble counter top, and dark timber shelving.
A kitchen with green marble counter tops, and white cupboards.
A kitchen with green marble counter tops, a unique extruded tube range hood, and white cupboards.
A kitchen dining table made of green marble, looking out onto a stone patio.
A kitchen with a green marble counter top, and white cupboards.
A kitchen with green marble counter tops and a circular window.
A staircase with wooden railing, and a pink runner leading onto a landing with a grand piano.
A wooden door with a green tiled wall and circular window..
A living room with dark green walls and bookshelves, looking out onto a backyard.
A bathroom with pink marble counter tops, and intricate white tiled walls.
A bathroom with pink marble counter tops, and intricate white tiled walls and a celestory window.
A bathroom with pink marble counter tops, leading onto a wooden panelled room.
A timber panelled room with wooden doors and a reflective art peice in the centre.
A bedroom with a pink dividing wall, pink carpet, a timber bedside table and a bed.
A bedroom with a pink dividing wall, pink carpet, a timber bedside table and a bed.
A bathroom with white marble walls, a mirror and a white sink.
A bathroom with white marble walls, a mirror and timber clad cupboards.
A spiral staircase in a backyard.
A spiral staircase leading to a balcony in a backyard.
A paved backyard.
A balcony with a small table and chairs.
A backyard with grass, crazy paving and a fireplace.