Fairlie Apartment
Fairlie Apartment
An interior fit-out in one of the most celebrated apartment buildings in Melbourne, Fairlie.
Traditional Land Owners: Wurundjeri People
Builder: Comb Construction
Photography: Derek Swalwell
Awards:
2024 Victorian Architecture Awards: Winner - Interior Architecture
2024 Australian Interior Design Awards: Commendation - Residential Design
2024 Interior Design Excellence Awards: Winner - Colour
2024 Interior Design Excellence Awards: Commended - Residential Single
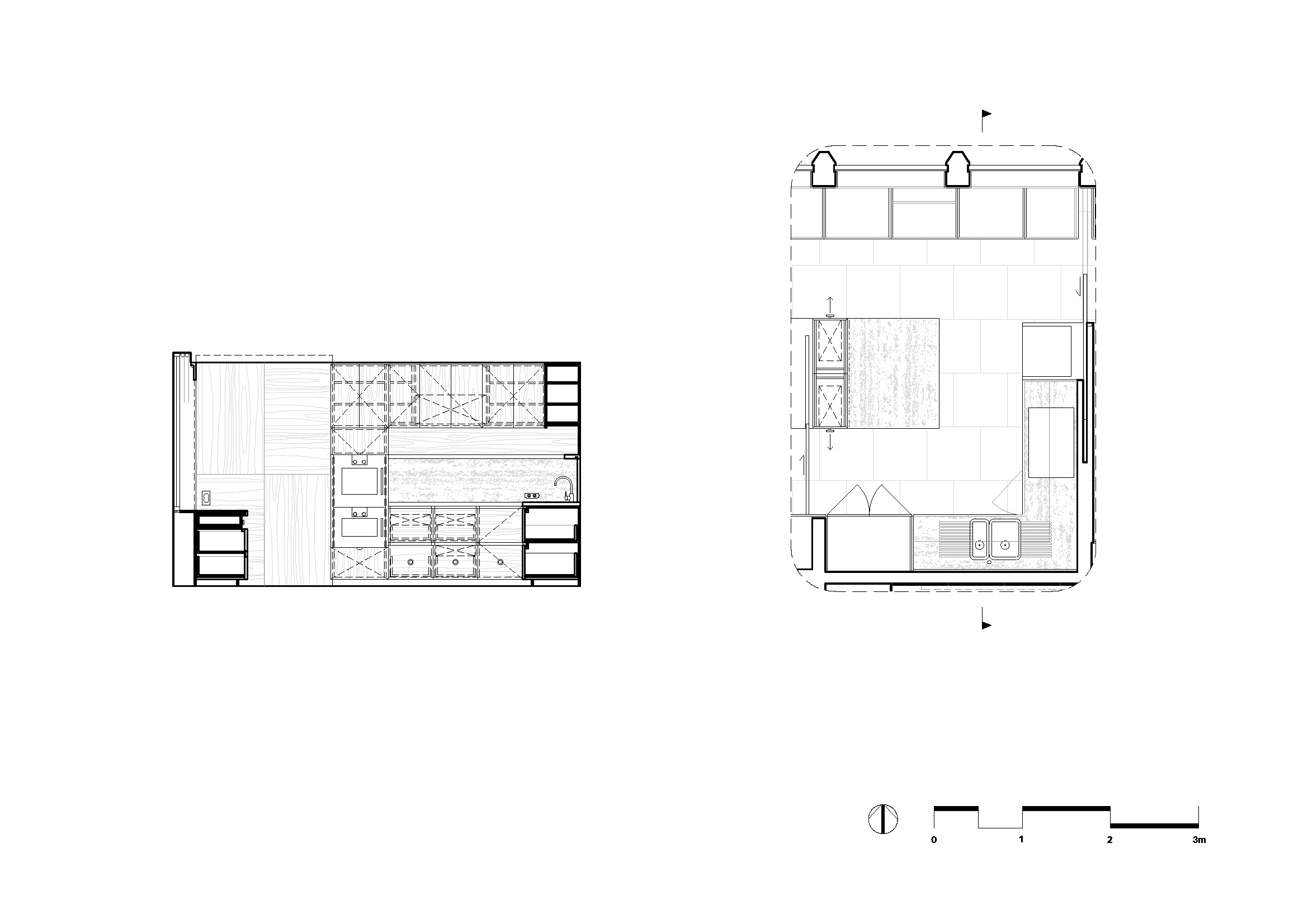
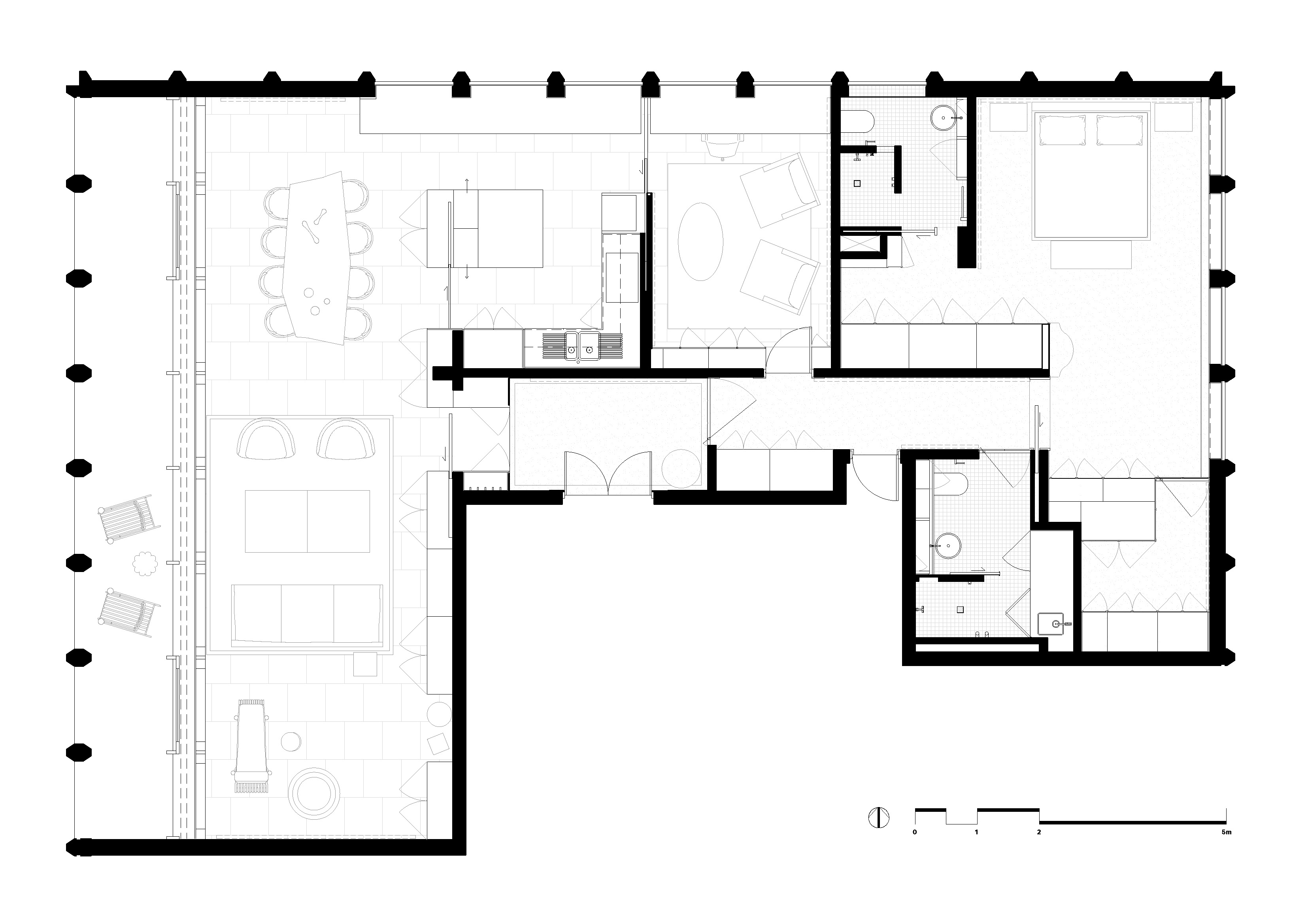
This apartment interior can be found in one of the most celebrated apartment buildings in Melbourne, Fairlie, by the venerable modernists Yuncken Freeman Bothers, Griffiths and Simpson. The hyper-refined Regency flavour of the late-modernist building sets the tone for a thorough re-imagining of what was a much-altered apartment. The building envelope includes a north and east elevation as well as a truly spectacular western elevation perched above Guilfoyle’s Volcano in the Melbourne Royal Botanic Gardens. The deep vista includes the full length of the gardens, the tower of Government House rising from the canopy, the MCG visible to the north and the dramatic cliff-like panorama of the CBD as a glittering, distant backdrop.
Put simply, the brief was for a down-size apartment for a client transitioning from a large house and garden which came with a lifetime of carefully and intelligently collected art and furniture. Initial discussions ranged wide with an interested and interesting Client. Some of the outcomes of these discussions were around the specifics of domestic habitation, requirements informed and honed through previous architectural commissions, but there was also a keen exploration of thematic and conceptual matters.
Our first move was spatial, a desire to break down the cellular plan and introduce enfilades which would reveal the triple aspect of the floor-plate but also acknowledge the way an apartment can be inhabited as a variegated progression through a continuous space. The collection of furniture and art our Clients brought with them suggested a design methodology – the creation of an interior in the manner of a Wunderkammer or a series of armatures in the manner of Sir John Soane’s house museum.
The nexus of a decorative late-modernist building, definitive spatial planning and a desire to make a setting for art, objects and furniture came together in a particular way. Materiality, texture, surface and colour draw on the tertiary hues of late modernism and the luxurious intensity of a design movement at its hedonistic zenith – an approach epitomized by the extensive use of that most bourgeois of tones - beige. Enfilade planning opens up the interior and de-limits horizontal space, a progression which is enlivened through intense but purposefully muted colour and texture at the entry and in the snug. And finally, the impact of precious objects is heightened through designation of specific places – plinths, platforms and ledges, but also through an elevated entourage of grasscloth, raw linen, limed oak and polished plaster.
This apartment is civilized in the very best sense, it is not vulgar luxury, rather it reflects a thoughtful and cultivated approach to living beautifully and well.















